Neumann Monson Architects Offices – Iowa City
Neumann Monson Architects’ renovation of their Iowa City offices reimagines workspace flexibility, embraces sustainable practices, and enhances collaboration through innovative design and holistic environmental standards.
This renovation developed as a response to the 2020 pandemic and its impact on the contemporary workforce. The project seeks to accommodate new ways of working, evolve with future challenges, and reflect the values of a sustainably minded organization.
To guide decision-making, the team followed the International Living Future Institute’s CORE certification program, a holistic green building standard that measures energy performance, material usage, and social equity. Such programs are known to increase project costs, and the renovation was an opportunity to find ways to meet rigorous standards on a lower budget.
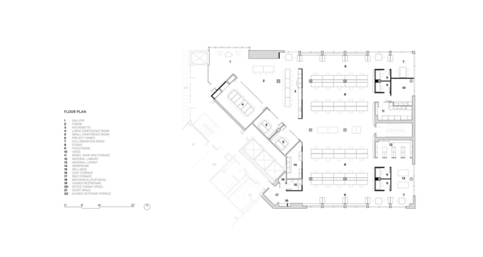
The design emphasizes flexibility and choice, allowing occupants to work in an environment that best suits their needs. Reducing individual workstations increased group space from 43% of the working area to 65%. One example is the forum where team members exchange ideas at pin-up and recycled glass marker boards.
Reducing workstation sizes also allowed for private focus rooms, a wellness room, bike storage, and dedicated spaces for model- and video-making. 92% of regularly occupied spaces have access to daylight, with elements along the perimeter minimized to enhance sight lines.
The renovation was also an opportunity to upgrade systems and improve performance. An all-electric Variable Refrigerant Flow (VRF) mechanical system reduced energy consumption by 41% compared to a similarly sized workspace. The system’s condensate recovery system provides chlorine-free water for the studio’s many plants.
Whenever possible, the team reused materials from the previous space, and new materials like ash hardwood, rebar, and blackened steel were chosen for their durability and ability to reveal age. Approximately 40% of new materials were sourced within a 300-mile radius.
Design: Neumann Monson Architects
Photography: Cameron Campbell Integrated Studio













Now editing content for LinkedIn.